Saint-Laurent-du-Var near Nice new-build, top floor apartment
Côte d'Azur / Alpes-Maritimes, Alpes Maritimes (06)
€606,000 ID: 172262**Other options are still available in this new-build development (1 and 2 bedroom apartments). Contact us for more details.**
This superb top floor apartment is located within a new-build development in St. Laurent-du-Var near Nice.
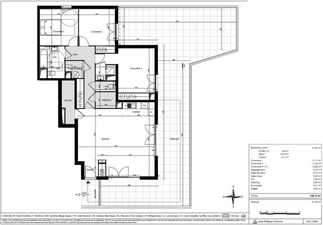
It offers a spacious 91m2 east-facing terrace, 3 bedrooms, a bathroom, a shower room and a living room with an open-plan kitchen. The total indoor living area is 108m2.
An underground private parking is included in the price.
The deliveries in the project were scheduled for the 3rd quarter of 2024.
Being a new-build apartment the buyer will profit from reduced notary fees of only 2% (compared to 8% for old-build). Eligible for tax reductions (Pinel Zone A) for French fiscal residents.
Information about risks to which this property is exposed is available on the Géorisques website : https://www.georisques.gouv.fr
-
Details
- Property Type
- Apartment(s)/flat
- Status
- New (ready)
- Total living m2
- 108 m²
- Sewage
- Mains
-
Room information
- Total number of rooms
- 4
- Bedrooms
- 3
- All bathrooms
- 2
- Garage
- Internal
-
Special features
- Double glazing
- Broadband internet













