Typical Marche style old brick farmhouse with garden and olive groove
De Marken / Marche, Fermo
€ 325.000 ID: 172699Typical Marche style old brick farmhouse renovated with accessory rooms, lush garden with fruit trees and olive trees, for sale in Massa Fermana, Marche, Italy.
The property is located a few dozen meters from the secondary road, enjoys privacy but without being isolated.
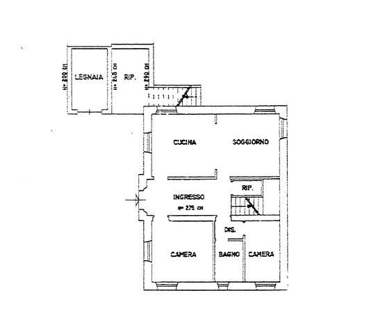
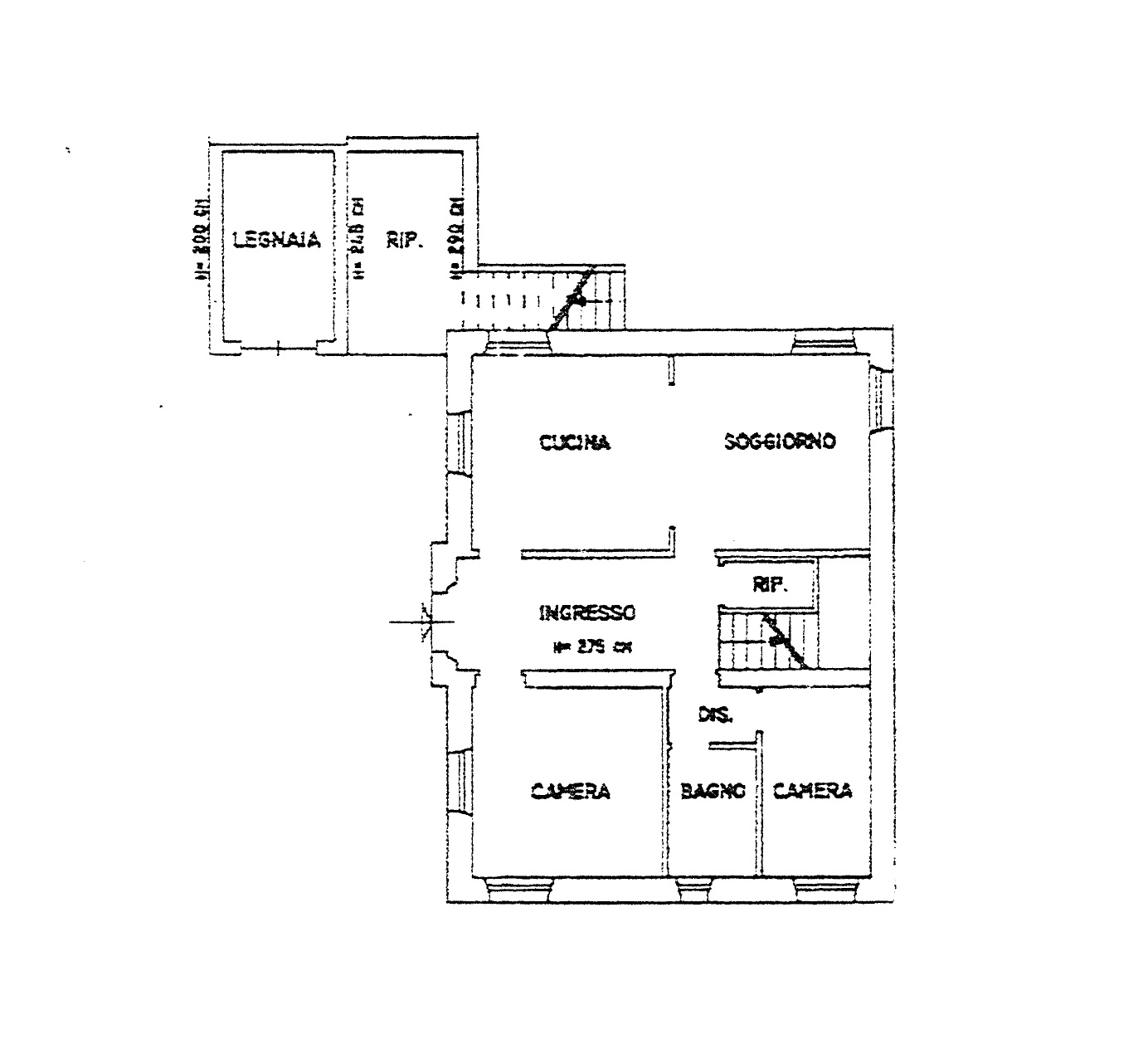
The residential part extends for 330 square meters on three floors.
On the ground floor of about 110 square meters, we find the large kitchen, the dining room, the living area, a study / bedroom and a bathroom.
On the first floor of about 110 square meters, which is accessed via an internal staircase, there are 4 bedrooms and a bathroom, one of the bedrooms has access to the balcony.
The second floor of a further 110 square meters, is currently used as a storage room, but given the heights of the roof it can also be destinated to a different use.
The basement houses a large cellar of about 40 square meters, adjacent to which there is a storage room of a further 30 square meters, two other accessory rooms to be renovated of about 35 square meters and a garden partly agricultural land of about 5,000 square meters complete the property.
CONDITION AND FINISHES
The residential part of the farmhouse is in excellent internal and external conditions, thanks to the expert restoration carried out about 20 years ago.
SERVICES AND UTILITIES
All services are connected and working.
USE AND POTENTIAL
The property would be ideal as both a holiday home or primary residence. It is also suitable as a B&B as well as seasonal rentals.
This tycical farmhouse is just about 30 minutes drive away from beaches, lakes and hiking in the mountains. The nearby medieval hill towns offer fantastic local food, culture and history. Local festivals and markets render the area lively for those who want to stay closer to home.
LOCATION
Supermarket at 3 km
Coast at 35 km
Lake 30 km
Ski resort 45 km
Airport 80 km
-
Details
- Type Onroerend Goed
- Boerderijwoning
- Conditie
- Goed / enige decoratie
- Categorie detail
- Buitenplaats
- Etages/Niveaus
- 3
- Woonoppervlakte m2
- 330 m²
- Grondoppervlak
- 5.000 m²
- Grond HA of Juridisch
- 0-1 HA
- Oriëntatie
- Zuid-West
- Grounds Type
- Tuin / weiden
- Uitzicht
- Landelijk
- CV
- Gas
- Riolering
- Septische tank
-
Kamerinformatie
- Totaal aantal kamers
- 12
- Slaapkamers
- 5
- Badkamers
- 2
- Serre
- 40 m²
- aantal balkons
- 1
- Opslagkamer
- ja
- Bijkeuken
- ja
- Gasverwarming
- ja
-
Speciale voorzieningen
- Dubbele beglazing
- Werkplaats
- Fruit trees
-
Belangrijke afstanden
- Winkelcentrum 15 km
- Supermarkt 3 km
- Uit eten 3 km
- Basisschool 3 km
- Hospitaal 10 km
- Huisarts 3 km
- Vliegveld 80 km
- Tandarts 3 km
- Treinstation 35 km
- Golfbaan 40 km
- Rivier 5 km
- Meer 30 km
- Kust 35 km
- Skigebied 45 km
- Bus , Metro, Tram ja























































