Newbuild, spacious penthouse with U shape terrace 66m2; 3 bedrooms, center of St Julien et Genevois
Rhône-Alpes, Haute-Savoie (74)
644.500 € ID: 172526
A34859LK74 - Delivery 1st trimestre 2027:
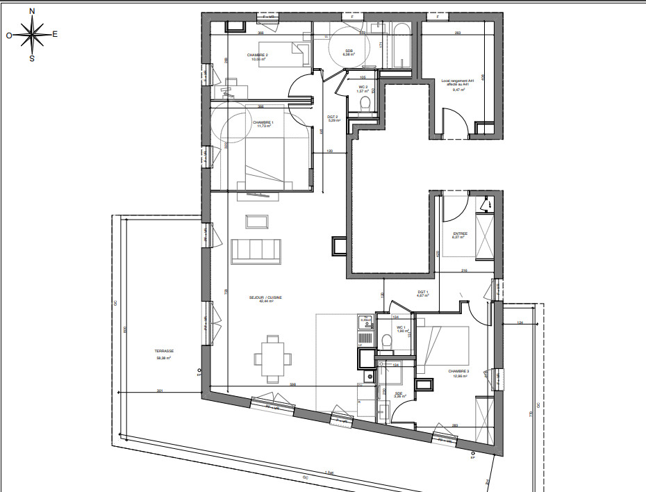
Luxurious apartment, penthouse on the 4th floor of 103,70m2; with the U shape terrasse of 66 m2, direction south, east and west.
With 3 parking lots and 2 caves included in the price.
Entrance 6,27m2; Bathroom 6,38 m2; shower room 3,26m2; WC 3,47m2; storage room 9,96 m2; first bedrooms 11,73m2; second bedroom 10,06m2; third bedrooms 12,9 m2; salon + kitchen 42,44m2.
Information about risks to which this property is exposed is available on the Géorisques website : https://www.georisques.gouv.fr
Show less...
-
Dettagli
- Tipo di Proprietà
- Attico
- zona abitabile (m2)
- 104 m²
- Terreno m2
- 66 m²
- Terreno HA / Giuridico
- Grounds 0-1 HA
-
Informazioni camere
- Stanze da letto
- 3
- Totale bagni
- 2







