PARIS IV | Île Saint-Louis | Havre de Paix Parisien | 3 Pièces | 70m² | Immeuble de 1750 AVEC ASCENSEUR
Île de France - Paris, Paris (75)
1 000 000 € ID: 173588
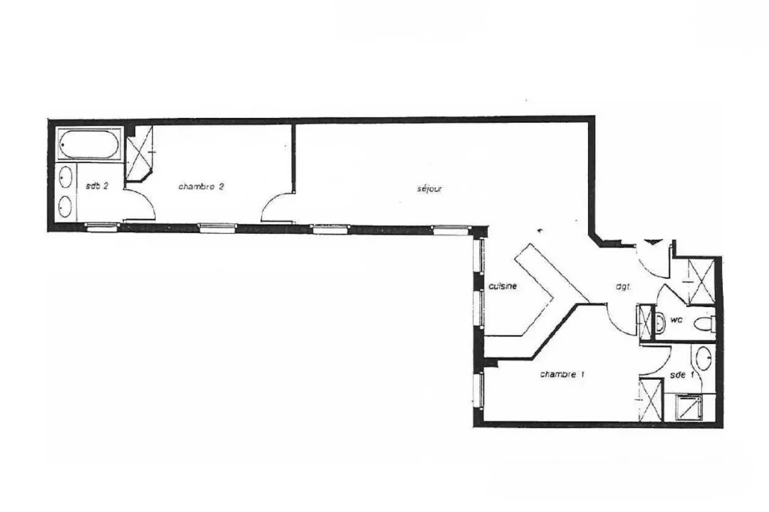
A34904HHE75 - Joyau rare sur l'Île Saint-Louis: appartement 3 pièces exceptionnellement calme dans un immeuble XVIIIème avec ascenseur. Niché au 3ème étage sur cour paisible, ce havre chaleureux aux poutres apparentes offre une atmosphère apaisante en plein cœur de Paris. Distribution idéale: entrée avec rangements, WC séparé, séjour/salle à manger en L ouvert sur cuisine, deux chambres bien dimensionnées (l'une avec salle d'eau moderne à l'italienne, l'autre avec buanderie - possibilité seconde salle d'eau). Cave privative. Caractère d'origine préservé dans copropriété de 20 lots. L'alliance rare de calme absolu, espace généreux, deux vraies chambres/salles d'eau potentielles, ascenseur et charme authentique fait de ce bien une opportunité exceptionnelle qui sera vite saisie. Une retraite sereine au cœur du Paris prestigieux. Charges: 2.216€/an.
Les informations sur les risques auxquels ce bien est exposé sont disponibles sur le site Géorisques : https://www.georisques.gouv.fr
Moins...
-
Détails
- Type de bien
- Appartement(s)
- État
- Bon
- Surface habitable (m2)
- 70 m²
-
Description de la chambre
- Chambres
- 2
- Salles de Bains
- 2
-
Particularités
- Broadband Internet
- Ascenseur



















