4 bed farmhouse with annex, pool, tennis court and about 3.5 Ha land, sale, Venarotta, Le Marche
Die Marken, Ascoli Piceno
Objekt verkauft ID: 159373Restored 4 bedroom stone farmhouse for sale in the Marche, Venarotta with annex, pool, tennis court and about 3.5 Ha of land in the foothills of the Sibillini mountains.
The farmhouse can be easily divided into two self-contained apartments!
Location
The property is at the end of a 400m white road in good condition in a private but not isolated, sunny spot.
- 5 minute walk to the village
- 15 minutes from the provincial capital of Ascoli Piceno
- 30 minutes to the seaside
- 1,15 hours to Ancona and Pescara airport
Features
This property is the complete package: an easily accessible restored farmhouse with a pool, in a beautiful position near a village with great views of the mountains.
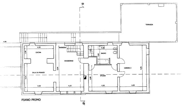
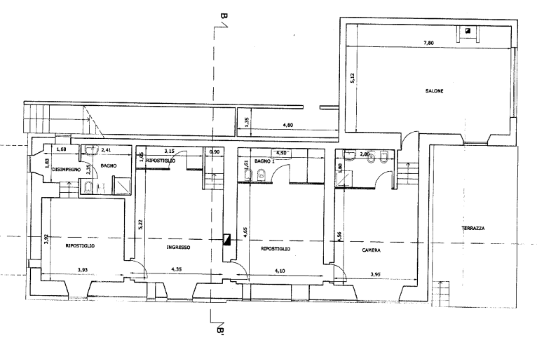
The smart 380 sqm South facing stone farmhouse was thoroughly restored in 2007 and comprises 2-3 independent areas including:
- Ground floor: Entrance, kitchen/sitting room, 2 bedrooms, 3 bathrooms, a home spa with steam room and sauna, portico with a separate kitchen and terrace
- First floor: kitchen, dining room, sitting room, 2 bedrooms, bathroom and terrace
The annex, which needs work, has 2 bedrooms and 1 bathroom.
The land consists of a well maintained garden with a 12 x 6 swimming pool and a tennis court in need of maintenance, an olive grove with 160 productive trees, fruit trees of various types, woodland and a 2Ha arable field that can be rented out and is suitable for horses. There is a barn for housing agricultural equipment and a well for irrigation.
Services and Utilities
Independent heating systems for each floor comprising both gas and wood burners and heat pumps for air conditioning/heating
Mains water and septic tank sewage system.
Everything is in perfect working order.
Potential Use
Holiday home or rental accommodation with proven track record.
The property is perfectly situated to take advantage of the many outdoor activities such as trekking, skiing, riding, cycling.
-
Details
- Wohnungstyp
- Bauernhof Wohnung
- Kondition
- Restauriert / renoviert
- Kategorie Detail
- Auf dem Lande
- Etagen/Stockwerke
- 2
- Wohnfläche (m2)
- 440 m²
- Grundstücksfläche (m2)
- 35.000 m²
- Boden HA / Legal
- Grounds 5-10 HA
- Lage
- Alle richtungen
- Grounds Type
- Garten, Wiesen, Wäldern
- Zentralheizung
- Gas
- Aussicht
- Countryside
- Abwässerung
- Septischer Behälter
- Maximale Besetzung
- 12
-
Zimmerinformation
- Gesamtanzahl der Zimmer
- 12
- Schlafzimmer
- 6
- Andere Bäder
- 5
- Extra Küchen
- 1
- Gesamtparkplatz
- 8
- Terrassegröße
- 15 m²
- Spa
- Ja
- Gasheizung
- Ja
-
Besonderheiten
- Doppelfenster
- Private Terrasse
- Schwimmbad
- Tennisplatz
- Exterior Lights
-
Dienstleistungen in der Nähe
- Supermarkt 5 km
- Einkaufszentrum 10 km
- Essen gehen 3 km
- Grundschule 5 km
- Krankenhaus 15 km
- Flughafen 110 km
- Zahnarzt 3 km
- Bahnhof 15 km
- Golfplatz 50 km
- Fluss 5 km
- See 25 km
- Küste 50 km
- Skigebiet 20 km
- Bus, U-Bahn, Straßenbahn Ja









































