UNIQUE, Appartement NEUF à Toulouse adresse privilégiée face à la Garonne Vue imprenable TERRASSE de 40 m2
Midi-Pyrénées, Haute-Garonne (31)
729 000 € ID: 176556
A27238AK31 - Livraison : Immédiate
Prix direct Promoteur
Frais de notaire réduits.
Visible sur RDV uniquement.
TOUT À PORTÉE DE MAIN POUR LA SIMPLICITÉ au quotidien
- Face au futur parc urbain de l'île du Ramier
- Groupes scolaires de la maternelle au lycée, à quelques minutes de la résidence
- Arrêt de bus face à la résidence
- Nombreux commerces de l'avenue à disposition
- À 7 minutes à pied du tramway pour rejoindre le centre-ville en quelques minutes
Connectée aux grandes villes d'Europe avec l'aéroport de
Toulouse-Blagnac
La gare SNCF en cœur de ville
Une ville verte à 1h30 des Pyrénées et de la mer Méditerranée
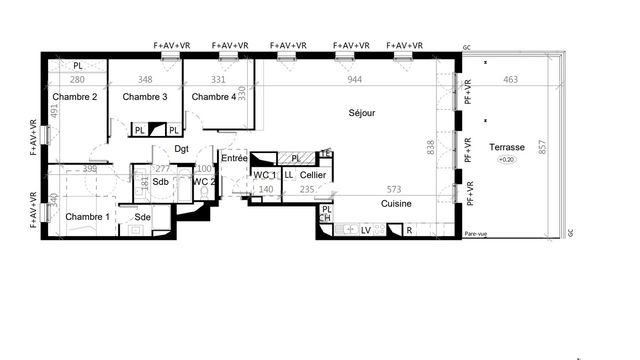
L'appartement de ce 5 pièces se compose
Séjour 46.0 m²
Cuisine 15.3 m²
Cellier 3.7 m²
Dgt 9.7 m²
Chambre 1 12.5 m²
Sde 3.4 m²
Chambre 2 13.8 m²
Chambre 3 12.1 m²
Chambre 4 10.6 m²
Sdb 4.9 m²
WC 1 1.8 m²
WC 2 1.5 m
TOTAL HABITABLE 135 m²
Terrasse 40m²
2 PLACES DE STATIONNEMENT EN SOUS SOL
Les informations sur les risques auxquels ce bien est exposé sont disponibles sur le site Géorisques : https://www.georisques.gouv.fr
Moins...
-
Détails
- Type de bien
- Appartement(s)
- État
- Programme neuf
- Surface habitable (m2)
- 135 m²
- Terrain de (m2)
- 40 m²
- Taille HA ou Juridique
- Newly Built Property
-
Description de la chambre
- Chambres
- 4
- Salles de Bains
- 2













