Luxury new-build chalet in a peaceful hamlet of Méribel, with ski-in / lift-out access and mountain
2.850.000 € ID: 175819
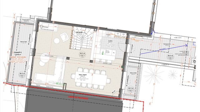
A41186KRJ73 - A beautifully designed modern alpine chalet in the highly sought-after Hameau du Raffort, Méribel. This newly built property perfectly combines refined mountain style with contemporary comfort and functionality. Spanning three levels, the chalet features five bedrooms (four en-suite), generous open-plan living areas, and large windows framing breathtaking mountain views. The design emphasises light, space, and seamless indoor–outdoor living — ideal for relaxed family holidays or elegant entertaining after a day on the slopes.
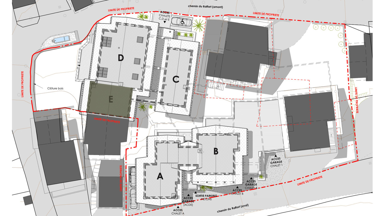
With ski-in/lift-out access, underground parking, and reclaimable VAT (conditions apply), this property offers both luxury and financial advantages. Chalet E is part of an exclusive collection of six individual chalets sharing a secure entrance hall and underground garage, ensuring privacy with a touch of community. A rare opportunity to own a modern home in one of Méribel's most charming and authentic hamlets.
Information about risks to which this property is exposed is available on the Géorisques website : https://www.georisques.gouv.fr
Show less...
-
Details
- Wohnungstyp
- Chalet
- Wohnfläche (m2)
- 175 m²
- Grundstücksfläche (m2)
- 44 m²
- Boden HA / Legal
- Grounds 0-1 HA
-
Zimmerinformation
- Schlafzimmer
- 6
- Andere Bäder
- 6



















